エコリフォームのマンション > マンションリフォーム事例 > 【スケルトン】ライフスタイルの変化に合わせた自由な空間

| HOUSE DATA | 東京都台東区・Y様/築48年マンション/工事面積59㎡ |

お子さんのお部屋を設置!
・・でもいずれまたオープンな空間にできる工夫をしているんです!
インテリアは明るくナチュラルに♪
お客様よりうれしいご感想をいただきました! |
部屋が綺麗になるとこんなにも気分が上がるものなんですね。毎日楽しいです(^^) |
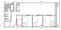
リフォーム前の様子とお客様のご要望

Y様のご希望は「家族のライフスタイルの変化に合わせられる住まい!」
担当させていただきました、インテリアコーディネーターの千葉容子です!
Y様ご家族は、高校生と小学生のお子さんがお二人。個室が欲しくなる頃でしたが、
リフォーム前の2LDKの間取りでは、お部屋が足りませんでした。
ですから、今回のリフォームの1番の希望も、
お子さんのお部屋を設けて差し上げたい、ということでした。

いずれ、独立されるのも、そう遠い未来ではありません。そうなると個室は不要になるので、後からまたオープ
ンにできるようにしたい、ともお考えでした。
もともとY様のお好みだったダークな印象のインテリアも、お子さんの為に思い切って、
ナチュラルで明るい雰囲気にしたい!とのご希望です。
そして、このようなリフォーム計画が出来上がりました!

お子さんの個室は作っても、将来的には撤去がしやすい間仕切りって・・・?と頭をひねった結果、
通常のように壁を作るのではなく、木の柱と木のパネルを使ってゆるく空間を仕切る方法をご提案いたしました!
マンションでありながらも、その枠にとらわれない、自由な発想の住まいが実現します。
もちろんインテリアも、自然素材を取り入れて明るくナチュラルになり、雰囲気が大きく変わりますよ。
それでは、写真を見ながら細部まで詳しくご紹介します!
![]() |
フレキシブルで、ナチュラルなインテリアを取り入れた新しい空間! |

Y様は20年前に一度リフォームをなさっていて、その際には、シックなインテリアで統一されていたのですが、近年は、お子さんのためにも「明るい印象に変えたいな」とお考えでした。新しくなった空間は、間仕切りの集成材パネルを始め、柔らかい印象の素材や、半透明の板が嵌った無垢の建具を使い、なんとも言えず優しい、透明感のある印象になりました。
![]() |
個室の間仕切りは、ゆるやかに区切り、将来的には撤去しやすい 天然木パネルと木の柱で造ったパーテーションにしました。 |
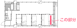
今回お部屋を増やすにあたり、リフォーム前の間仕切りや収納スペースはいちど全て撤去。
そして新たに立てられたのがこちら、パイン(松)の集成材で出来たパネルの間仕切りです。ナチュラルな色合いや木目はとっても心癒される印象です。
厚みのある壁で上までしっかり仕切るのではない、このようなパネルの間仕切りは、Y様ご家族のように、お子さんがいらっしゃるご家族にとっては利点の多い素材なんです
★ポイント1★ 比較的撤去がしやすい
Y様のご希望は、お子さんのお部屋を確保しながらも、「将来は再びオープンな空間にできるようにしておきたい」というものでした。
しっかりした壁を立てると、将来撤去しようとしたときに、大掛かりな工事をしなくてはならなくなってしまいます。
このパネルであれば、比較的簡易に撤去できます。★ポイント2★ 個室にいてもご家族の気配を感じやすい!
こちら、あくまでも壁ではなくパネルの為、お部屋同士の音は通りやすくなりますが、家族同士の気配を感じやすいという利点もあり、お子さんのお部屋の間仕切りとしてはオススメなんです。※逆に、書斎やお仕事部屋として、閉じられた空間にしたいという用途に使用する場合は、不向きかもしれません。
![]() |
あたたかみのある無垢の建具。 半透明窓が入ったタイプで、お部屋を明るく感じさせます |

Y様邸では、建具に、天然の木を使ったものを採用しました。
上半分に半透明のパネルが嵌ったタイプなので、個室に入って戸を閉めても、お部屋が圧迫した印象にならず、何となくリビングとのつながりを感じます
建具は、可能であれば引き戸がおすすめ!
開き扉は、扉の開閉スペースが必要ですが、引き戸は省スペースでも広く開閉することができますし、最近の引き戸は、力を入れずに軽く開閉できるようになっていてとても使い勝手が良いのです。最近はマンションのでも、既存の開き扉から引き戸に変更されたいというご要望、多いんですよ。 開き扉の方が取り付けは容易で、戸袋や、レールの取り付けが必要な引き戸に比べて費用は安く済みますが、それでもやはり、引き戸オススメです。
![]() |
とても明るくなった床に採用したのは、天然木の風合いが楽しめる「グランドフローリング」です |
■ 防音性能バッチリ&おしゃれなフローリングです
マンションの場合、防音の規定が厳しいので、防音のフローリングを採用すること機会が多いです。Y様邸ではこちら、防音性能のあるウッドワンさん製の「グランドフローリング」を採用しました。
また、通常のフローリングより幅広で高級感があるのも、グランドフローリングの良いところ!
間仕切りに採用した木のパネルとも相性の良い、ナチュラルな色合いを採用いたしました。
![]() |
Y様邸オリジナルのユニークなアイディアがいっぱい! |
光を通す透明間仕切り!
窓際のお部屋は明るいのですが、真ん中のお部屋は窓が無く、普通にパネルを立てると、昼間も電気が必要な暗いお部屋になってしまいます。そこで、窓際のお部屋と真ん中のお部屋の間仕切りは、写真のような半透明のポリカーボネートを使った間仕切りを取り入れました。窓が無くても昼間はこれでかなり明るいですよ!
尚、お年頃である高校生のお子さんは、個室の形をご希望されましたので、半透明の間仕切りにはせず、木のパネルを使用した奥のお部屋をお使いになる計画です。
半透明間仕切りは、可愛い飾り棚としても活用OK!
そこで、その桟をあえて巾を広くして、小物が飾れるようにいたしました。
写真のような小さな植物を飾っても素敵ですし、 お好みで様々なデコレーションをお楽しみいただけます。
エアコンを共有する為の隙間を設ける
こちら、エアコン効率を考え、あえて空けたものです。
奥のお部屋になると、エアコンの設置は建物の都合上、難しかったのです。
でも、このように隙間が空いていて、更に、引き戸も開ければ、夏の暑い時期でも、 現在ある二台のエアコンが、おうち全体に効いてくれます。
可愛らしい飾り棚(ニッチ)を取り入れる
こちら、お部屋に入り口の小壁です。5cm前後の棚を設置しました。
写真のようにちいさな植物を飾っても良いですし、フレームを飾って、各個室の表札のように使っていただいても可愛いです!一番窓際の壁には、リビングのアクセントになるように、少しサイズ大きめの飾り棚を二段造作しました。 写真立てや、季節の小物など、いろいろ飾って頂けますよ。

細かい箇所ですが、 この、木で囲われている、コロンと可愛らしいスイッチボックス&コンセントボックス!
こちら、Y様邸の仕様に合わせたオリジナルなんです。
通常ですと、壁の中にコンセントボックスも 配線も隠してしまい、 表には見えないようにスッキリ設置するものです。
でも、Y様邸では、柱とパネルで 間仕切りをしているので、 これらを隠す厚みがありません。
でも配線が見えてしまったら、せっかくナチュラルに 仕上がった空間がちょっと残念になってしまいますよね。
上手く加工した木で隠して、表からは全く見えなくしちゃいました。
スイッチボックスも可愛く木で加工し、デザイン性のある インテリアの一部にしてしまいました!
室内干しがしやすい「ホスクリーン」

Y様のマンションは、建築当時はベランダが無かったそうです。
現在は、後から取り付けられたベランダがありますが、やはり後付けということで、Y様ご自身は、ベランダに出て洗濯物を干すのに不安を感じられており、室内干しがしやすいようにしたい、とお考えでした。
そこで、設置した室内干しの便利アイテムがこちら、「ホスクリーン」です。
ただ、ホスクリーンは、天井の補強をせずに設置することはできません。
洗濯物は水を含むので重く、天井にかなりの力がかかるからです。下手をすると、洗濯物の重さに耐え切れず、外れてしまいます。
今回のY様邸のように、一度壁や天井の内装も全部剥がしてしまうようなリフォームですと、天井を補強して設置できるので、安心してお使いいただけますよ。
マンションでのホスクリーン設置はお問い合わせをよくいただくのですが、この天井補強が必須なので、それだけ行う場合は意外と費用がかかります。
![]() |
3つの個室に収納はあえて設けず、 玄関に近い箇所に設けたウォークインクローゼットを活用 |

お部屋が増え、各お部屋は以前より限らたスペースになりましたので、 リフォーム後は、個人のものは個室に仕舞い、共有のものは、このウォークインクローゼットに仕舞えるように計画しました。
写真奥はお布団が仕舞う箇所なので、押入れのような中棚を設置。ハンガーパイプには、コートや丈の長い洋服など、ご家族共同でお使いいただけます。 掃除機や季節家電などもこちらに収納いただけます。
![]() |
建築当時のままだった、洗面&トイレを新しく。 |

20年前の入居の際、キッチンはリフォームされておられましたが、洗面とトイレは昔のままで、かなり痛んできてしまっていましたので、こちらも新しくされました。
既存のタイル張りとシンプルな洗面台のスタイルは活かしながら、床に大理石調のフロア、スポットの照明を取り入れ、トイレも最新のすっきりしたデザインに。
最近人気のレトロモダンな印象に仕上がりました。
![]() |
玄関&玄関ホール |
玄関も、かなり印象が変わってナチュラルで明るい雰囲気に!土間の部分や壁が新しく張り替えられ、天然木パインのパネルと、木目の明るいフローリングが引き立ちますね。
技あり!分電盤のおしゃれ目隠し♪


マンションの場合、このように玄関に分電盤があるケースが多く、ちょっと目立ってしまうんです。 Y様もこの分電盤はちょっと気になっていて、リフォーム前はご自分で箱を作って隠しておられましたが、この度、大工さんがぴったりにボックスを造りました。
お部屋の仕切りパネルと同じパイン材で造作されており、統一感があります♪
お客様より嬉しいご感想をいただきました! |
部屋が綺麗になるとこんなにも気分が上がるものなんですね。
まだ家具は揃っていませんが毎日楽しいです(^^) |
Facebookでも情報発信中!








リフォームが終わって無事お引越しを済まされた後に、頂いたメールで
『部屋が綺麗になるとこんなにも気分が上がるものなんですね!!』仰って下さり、
とても嬉しく、Y様ご家族がより快適にお暮らし頂くお手伝いが出来たことに感謝します。